Programme
Construction d’une pouponnière pour 20 enfants.
Projet
La pouponnière est un établissement d’accueil pour enfants de 0 à 3 ans placés à l’aide sociale à l’enfance.
Il comprend donc des espaces de vie pour les enfants mais aussi des dortoirs et locaux de service supports et des espaces pour les visites des parents.
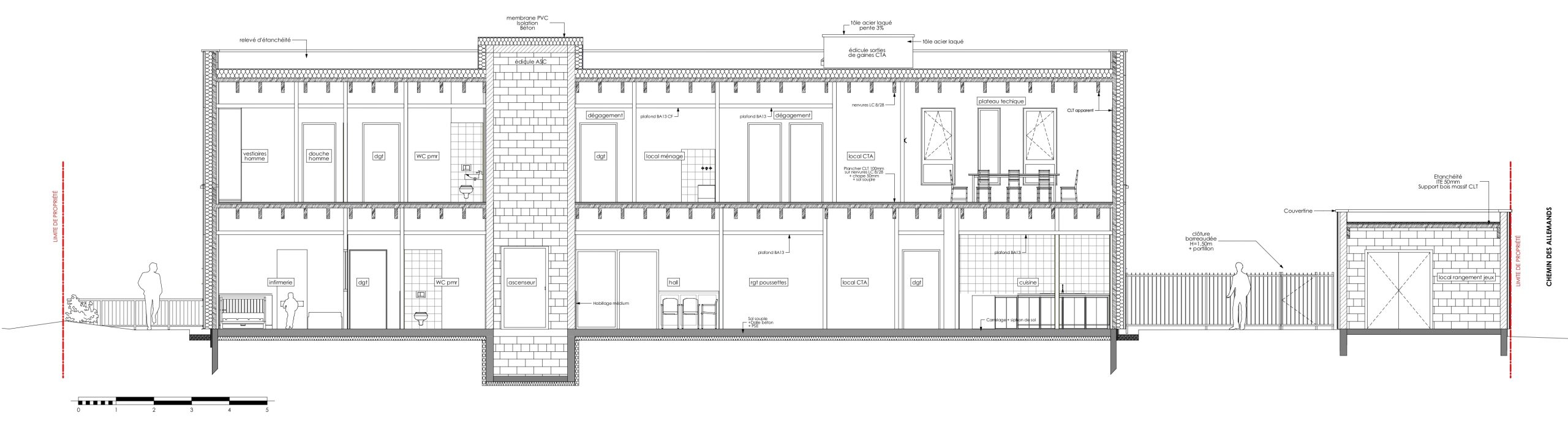
L’établissement accueille également à l’étage des bureaux pour le personnel encadrant, un plateau technique et un atelier afin d’organiser des formations, des locaux techniques et sociaux.
Le bâtiment est organisé de façon à préserver les enfants. Leurs espaces de vie sont orientés à l’arrière côté jardin, et bénéficient d’une triple exposition et d’un espace activités traversant avec éclairage zénithal.
Le jardin comporte différentes zones: terrasse couverte à l’ouest, terrasse et jardin au nord avec local de rangement des jeux.
Le bâtiment est construit en bois massif CLT laissé apparent par endroits (plafond, façade). L’aménagement intérieur est intégré.